8010 Graz

Nähe TU-Inffeld... Ganztagssonne... 2 Loggien... ideale WG-Eignung...

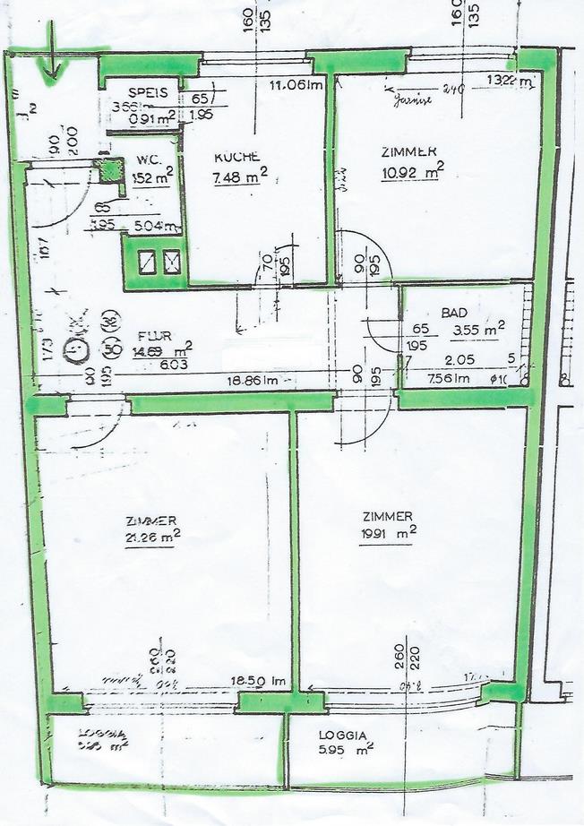
Überaus helle, freundliche Wohnung - Ganztagssonne durch Ost-West-Ausrichtung; durchdachte gute Raumeinteilung - Zimmer einzeln begehbar daher bei Bedarf ideale WG-Eignung; Zimmergrößen jeweils ca. 22 m², 20 m² und 11 m²; abgeschlossene Küche mit Platz für Essbereich; Speis/Abstellraum mit Fenster; Badezimmer mit Wanne und Waschmaschinen-Anschluss ausgestattet; Toilette mit Gästewaschbecken vom Bad getrennt; inkl. 2 Südwest-Loggien mit jeweils ca. 6 m²; durchgehend Massivparkettböden; Fenster Kunststoff-Isolierverglasung mit Rolläden; Lift; Kellerabteil mit Tageslichtfenster; Fahrrad-Abstellraum; grüne (günstige) Parkzone; zentrale Lage mit guter Infrastruktur und GVB-Anbindung (Straßenbahn + Bus); 4 Radminuten zur TU-Inffeldgasse; 6 Radminuten zum Stadtstrand bei der Seifenfabrik; 6 Radminuten zum Augartenpark und Murradweg (Joggen, Skaten, Radfahren, Picknick an der Mur-Bucht...); Die BK-Vorschreibung beinhaltet die Rückzahlung eines Haus-Sanierungsdarlehens für die bereits erfolgte energetische Sanierung des Hauses.

Aufgrund unserer Nachweispflicht gegenüber dem Verkäufer bitten wir um Verständnis, dass wir ausschließlich Anfragen per Email mit vollständiger Angabe von Vor- und Zuname, Anschrift sowie gültiger Telefonnummer beantworten können.

 92 m²
€ 268.000,--

Objektinformation

ID:k3fgg
Objektart:Wohnung
Zimmer:3
 
Heizung:Fernwärme
Böden:Parkett
WG-geeignet:für 3er-WG
Verfügbarkeit:sofort
 
Wohnfläche:92 m²
 
Kaufpreis:€ 268.000,--
Betriebskosten
(inkl. MWSt):
€ 304,--
Heizkosten
(exkl. MWSt):
€ 95,--
 
Maklerprovision:3 % vom Kaufpreis + 20% Ust.
 

Ausstattung und Energieausweis

+ Keller
+ Küche
+ Lift
+ Loggia
+ Teilmöbliert
 
HWB kwh/m²/Jahr:95
HWB Energieklasse:C
 
Download:Wohnungsplan
Für genauere Informationen zum Objekt kontaktieren Sie uns bitte.

Haben Sie Fragen?
Wir beraten Sie gerne!

Hobisch Immobilien
Messendorfer Straße 21d
8041 Graz

Kontaktformular